About ReMod Squad
Local Artisans, Craftsmen, & Designers
ReMod Squad has been Central PAs preferred home remodeler for over a decade. We’ve remodeled entire homes, additions, kitchens, bathrooms, bedrooms, basements, and more!
We are a local team of craftsmen dedicated to creating spaces that our customers will enjoy for years to come.
Our Design process
Step 1
First, we’ll meet to chat about your project and dive into your goals for the remodel.
It’s a great chance to get on the same page, share ideas, and make sure we’re all working toward the space you’ve been dreaming of.
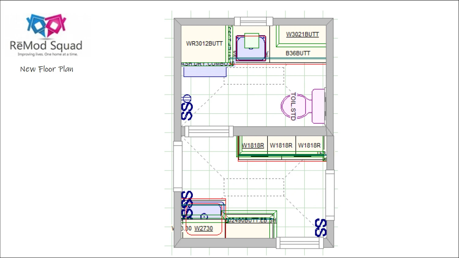
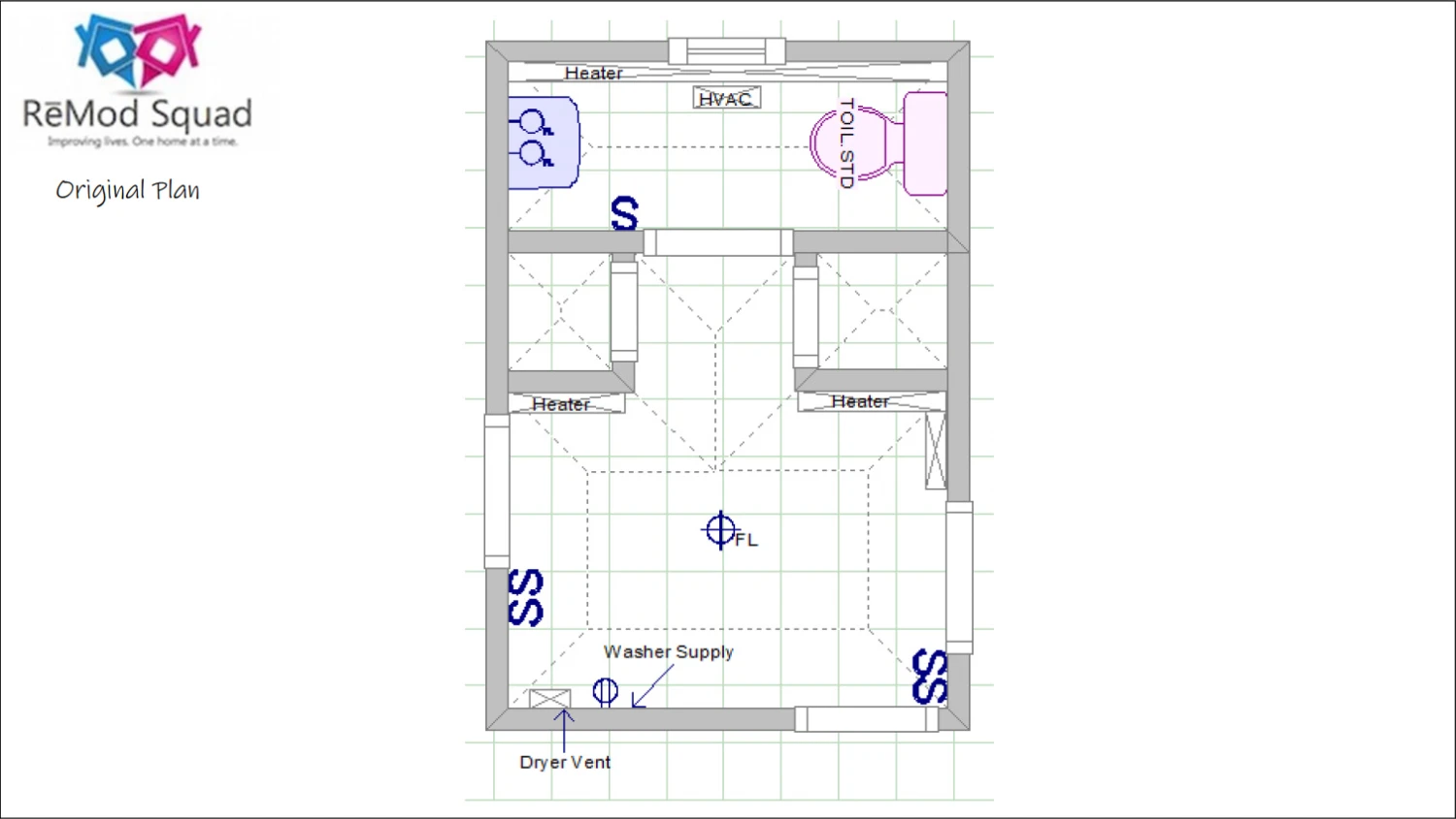
After that, we’ll put together a detailed estimate — just like the example you see below!
Step 2
Step 3
You will be added to our operating schedule, and with the Buildertrend app you can effortlessly stay updated on every phase of the project.
You’ll know who is doing the work, when it will be completed, and the start date for each stage of the process.












